信息时间:2026-01-09
信息来源:
阅读次数:
四川公路桥梁建设集团有限公司绵中科新校区周边道路及配套设施项目总包部石材采购公开招标公告
(招标编号:SRBG-CSJS-2026-03)
本次物资采购招标人为四川路桥城市建设有限公司,招标项目资金来自业主计量拨款,该项目已具备招标条件,现对石材采购进行公开招标。
2.1项目概况
本项目工期:约730日历天,其中:设计工期30日历天,施工工期:约700日历天。其中要求新享路全段409米,纬五路全段590米,经十三路K0+000~K0+750的750米,在2026年2月28日前达到通行条件。
项目业主方:绵阳科技城新区自然资源和规划服务中心;
设计单位为:中国市政工程中南设计研究总院有限公司;
监理单位:攀钢集团工科工程咨询有限公司;
总包单位:四川公路桥梁建设集团有限公司;
项目合同工期730天,承包模式为施工总承包;
工程地址:绵阳市九州大道至剑南路西段。
2.2招标内容
本次招标内容为项目现场施工用石材采购,具体招标采购物资规格数量及包件数量详见招标公告一览表。
收货地点:四川省绵阳市安州区界牌镇科技城大道/界牌镇朱家庙。
3.1本次招标采用资格后审的方式进行,投标人资格要求如下:
(1) 基本要求:投标人必须为能独立承担民事责任的独立法人或其他组织(其他组织以《最高人民法院关于适用〈中华人民共和国民事诉讼法〉的解释》第五十二条内容为准),具备招标物资的生产资格或供应经验;具有合法、有效的营业执照、开户许可证或基本存款账户信息、一般纳税人资格证明文件(采用一票制结算,能提供13%增值税专用发票)。
(2) 生产/供货能力要求:投标人必须满足招标人的供应需求,在任何情况下无条件优先供应我项目石材,施工期间不能断供。
(3) 供货业绩要求:近三年内(2023年1月1日至投标截止日)的同类物资供货业绩,且合同含税总金额达到300万元以的至少一个及以上,提供业绩的相关证明材料(中标通知书或合同协议书等)。
(4) 财务能力要求:注册资金不低于1000万元,投标人需提供近两年(2023-2024年度)的财务审计报告(截止递交投标文件时间,投标人成立时间不满一年的不需要提供)。
(5) 质量保证能力要求:投标物资具有质量监督检测中心或有资质的第三方检测机构出具的石材强度合格的检验报告。投标物资应符合国家或行业等质量、安全、环保要求及相关标准规范要求,若国家或行业行政主管部门颁布新标准,则按新标准执行。
(6) 履约信用要求:投标人需附上“信用中国”的“法人及非法人组织公共信用信息报告”(截止投标截止日期前7天内)以及信用承诺书。
(7) 近年发生的诉讼及仲裁情况:投标人需附上近两年在网站“天眼查”中“司法风险”一栏的内容截图或在中国裁判文书网(https://wenshu.court.gov.cn/)查询截图。
(8) 其他:
① 本次招标不接受联合体投标。
② 本次招标要求投标人在招标文件获取截止时间前须已成功纳入蜀道集团协作方资源库,或当前处于蜀道集团协作方资源库待终审状态。
4.1自2026年01月10日00时00分至2026年01月15日9时00分通过蜀道投资集团有限责任公司集中招标采购平台(以下简称“ 蜀道集采平台”)(https://zb.shudaojt.com)进行注册并使用CA数字证书登录后参与投标并下载招标文件。投标人注册详见首页《投标人入驻手册》。
4.2招标文件费用应以单位名义从对公账户转账至以下账户:
单位名称:蜀道投资集团有限责任公司材料集采分公司
开户银行:中国民生银行股份有限公司成都分行营业部
账号:标书费子账号
投标人需备注:城建公司绵中项目石材招标文件费。
招标文件售价为500元/份,逾期不售,售后不退。
温馨提示:请仔细核对系统中的招标文件费子账号,若因投标人自身原因导致转账错误,费用概不退还。
4.3招标文件缴费与查询:使用CA数字证书登录“ 蜀道集采平台”,进入“我的项目”菜单,点击报名项目的“招标文件领取”按钮,点击“网上支付”,根据系统中的账户信息进行缴费;在进入的页面点击“到账查询”按钮,进行招标文件费缴纳情况查询。
4.4招标文件补遗书(如果有)由投标人从蜀道投资集团有限责任公司集中招标采购平台(https://zb.shudaojt.com)、中国招标投标公共服务平台(http://bulletin.cebpubservice.com)、天府阳光采购服务平台(http://www.tfygcgfw.com)上自行查阅。投标人应在投标期间适时关注上述网站,并及时下载相关内容,招标人不再另行通知。如有问题或疑问,应及时与招标人联系;逾期未联系的,招标人视为投标人没有任何问题和疑问,或是已收到或默认已收到 ,否则造成的一切后果由投标人负责。
7.1公示制度
评标结果公示:招标人在收到评标报告之日起 3 日内,将评标结果在“蜀道投资集团有限责任公司集中招标采购平台”(https://zb.shudaojt.com)、“中国招标投标公共服务平台”(https://bulletin.cebpubservice.com/)和天府阳光采购服务平台(http://www.tfygcgfw.com)网站上公示 3 个工作日以接受社会公开监督。投标人或者其他利害关系人对评标结果有异议的,应当在评标结果公示期间提出。
7.2异议、投诉处理
7.2.1投标人对招标文件的异议以及招标人的答复,均应通过“蜀道集采平台”在“异议与答复”菜单中完成。
7.2.2投标人对开标如有异议,应在“蜀道集采平台”招标人点击唱标按钮后15分钟内通过“异议”按钮提出。招标人应在“异议回复”栏当场作出答复。
7.2.3投标人对评标结果如有异议,应在中标候选人公示期间提出。超出异议时效的,则不予受理。投标人提出异议以及招标人的答复均应通过“蜀道集采平台”在“异议与答复”菜单中进行。
7.2.4投诉的渠道:进入蜀道集采平台(https://zb.shudaojt.com)投标人登录对应项目后,点击“投诉”菜单提出。在有异议程序的事项中,超出异议期间没有提出异议的,不得进行投诉。超出投诉时效的,则不予受理。
7.2.5其他:
(1) 数字认证、投标人注册和投标流程通过蜀道投资集团有限责任公司集中招标采购平台(https://zb.shudaojt.com)下载专区操作手册进行下载。如遇系统技术问题请联系:400-8148-188。
(2) 投标人申请开具标书费发票事宜详见蜀道投资集团有限责任公司集中招标采购平台(https://zb.shudaojt.com)首页“帮助中心”模块第一项内容约定。
招 标 人:四川路桥城市建设有限公司
地 址:四川省绵阳市涪城区园艺东街锦湖花园东侧约60米
邮 编:621000
联 系 人:孙先生 联系人:李女士
电 话:13990505699 电 话:18981055600
招标公告附表
|
序号 |
物资名称 |
规格型号 |
计量单位 |
采购数量 |
预计进场时间 |
质量要求 |
备注 |
|
1 |
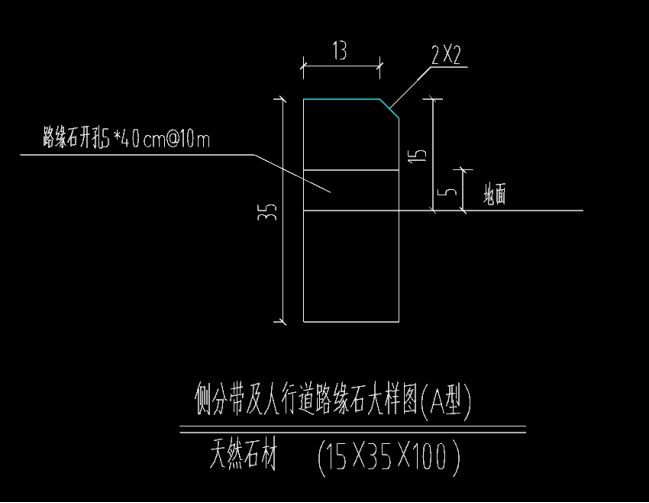
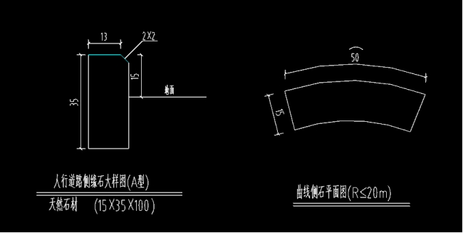
芝麻灰花岗岩路缘石(机切面) |
15㎝*35㎝*100㎝ |
米 |
15822.00 |
以项目通知时间为准 |
符合设计图纸要求和国家、省、市相关法律法规要求及行业颁发的工程质量验收标准,按照国家现行验收标准及相应配套的各专业验收规范,一次验收合格。 |
|
|
2 |
芝麻灰仿花岗岩嵌边石(机切面) |
10㎝*15㎝*100㎝ |
米 |
15822.00 |
|||
|
3 |
芝麻灰花岗岩树池边框(机切面) |
10㎝*15㎝*100㎝ |
米 |
22088.00 |
|||
|
小计 |
米 |
53732.00 |
|||||
注:1.以上数据仅作为初步招标依据,具体物资规格、数量以实际使用情况为准;招标公告规格、数量与招标文件规格、数量不符的,以招标文件规格、数量为准。
2.根据图纸要求,芝麻灰花岗岩路缘石(机切面)15*35*100需要开孔,详见以下图纸:

3.芝麻灰仿花岗岩嵌边石(机切面)10*15*100详见下列图纸: